4 bedrooms sunny apartment | South view | 217sqm


  • 4 Bedrooms
  • 3 Baths
  • 217 sqm built
Description

Placed in Herastrau-Aviatiei area, on the shore of Floreasca Lake and near Aurel Vlaicu metro station, in a modern residential complex with permanent security, this 4 bedrooms apartment is on the 2nd floor of a building Ug+Gf+4 completed in 2013.
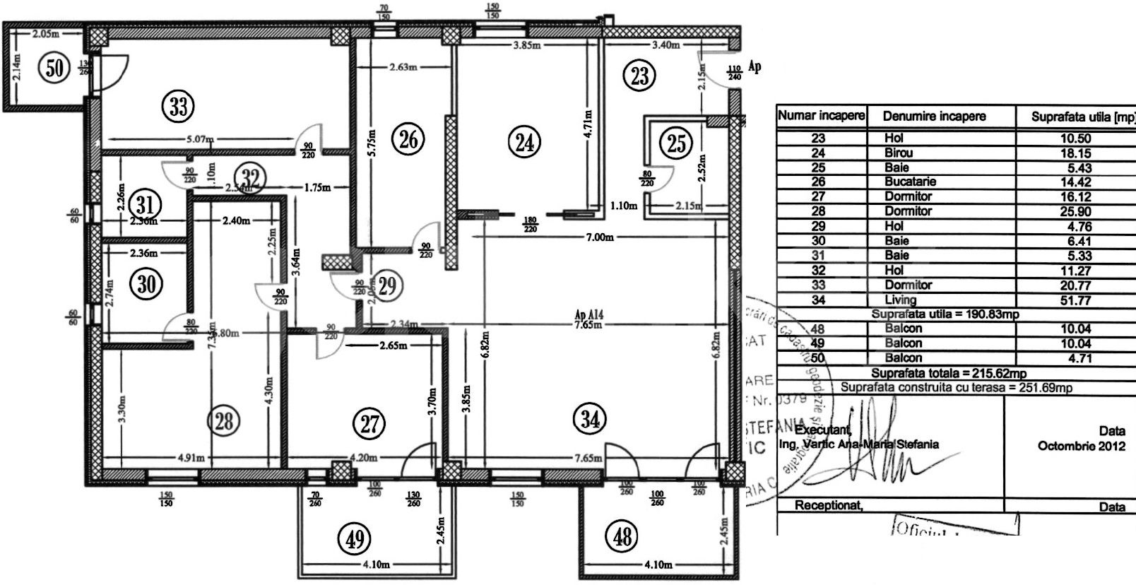
It has a total area of 217sqm, 190sqm usable and 27sqm terraces.
It consists of generous living room with dining area and exit on the terrace, separate and equipped kitchen, master bedroom with dressing and en-suite bathroom, 2nd bedroom with en-suite bathroom, 3rd bedroom, office/ bedroom 4 and secondary bathroom.
The apartment is unfurnished, but furniture can be brought on request.
Includes 2 parking spaces and 2 storage rooms in the underground garage.

Floor Plans
€ 1.050.000
  • 872532, Herastrau

    4 bedrooms sunny apartment | South view | 217sqm

Similar Properties


€ 1.150.000
  • 3 Bedrooms
  • 2 Baths
  • 300 sqm

Located in Herastrau area, this 3 bedrooms villa is arranged on 2 levels Gf+1 and was built on a land plot of 400sqm (250sqm garden). It has a built area of 280sqm of which 235sqm usable. The... Read more

€ 2.900.000
  • 4 Bedrooms
  • 5 Baths
  • 495 sqm

Located in Herastrau area, with panoramic view over the Park, this spectacular 4 bedrooms apartment is on the 6th floor of a building Ug+Gf+6 completed in 2004. It has a built area of 495sqm, 400sqm... Read more

€ 430.000
  • 2 Bedrooms
  • 2 Baths
  • 135 sqm

Right next to Herastrau Park, on a quiet street, this generous 2 bedrooms apartment is on the 4st floor of an Ug+Gf+5 building completed in 2010. It has a built area of 135sqm of which 95sqm usable... Read more